Фланцы ГОСТ 33259-2015 — производство и изготовление под заказ

Собственное производство всех типов и исполнений фланцев по ГОСТ 33259-2015, изготовление по чертежу и ТЗ, контроль качества и сертификат соответствия.

Что регламентирует ГОСТ 33259-2015

 

ГОСТ 33259-2015 регламентирует конструкцию, размеры и общие технические требования при изготовлении стальных фланцев трубопроводной арматуры шести типов.

Фланцы по этому стандарту могут выдерживать давление до PN 250 на трубопроводах систем промышленного назначения, общетехнического применения, а также трубопроводах, связанных с оборудованием, аппаратами и резервуарами. Таблицы стандарта подробно описывают допуски фланцев исходя из конкретных условий применения трубопровода - давление, температура, агрессивность среды.

Стандарт разработан с учётом международных норм (ISO 7005-1:2011, ISO 7005-2:1988) взамен нескольким устаревшим, начиная от ГОСТ 12815-80 до 12822-80 с 01.04.2016 года. Ключевые отличия от старых стандартов:

    • Объединение стандартов - систематизация требований к разным типам фланцев (плоским, свободным, воротниковым и др.);
    • Используются латинские обозначения диаметра (DN) и давления (PN), а не Ду и Ру как было раньше;
    • Расширение типоразмеров. В ГОСТ 33259-2015 увеличено количество типоразмеров, для некоторых типов увеличено давление;
    • Исполнение уплотнительных поверхностей - изменены обозначения, добавлена плоскость типа А ("бе зеркала") для PN 1, 2, 5 и 6;
    • Методы изготовления. По ГОСТ 33259-2015 литьё допускается только для арматурных фланцев.
    • Добавлены требования к маркам сталей для фланцев и крепёжных элементов;
    • Добавлены группы контроля от I до V;
    • Крепёж при низких температурах (ниже -40) - теперь только на шпильки;
    • Геометрия. b и h из ГОСТ 12815-80 теперь объедены в один параметр b, допустимое отклонение по нему только в большую сторону;
    • Маркировка. В маркировке фланцев добавлены обязательные элементы: тип фланца, номер ряда, тип исполнения уплотнительной поверхности, номер группы контроля.

В целом ГОСТ 33259-2015 представляет собой современный и унифицированный стандарт, направленный на повышение качества фланцев и безопасности трубопроводных систем.

Типы фланцев по ГОСТ 33259-2015

 

Тип, наименование и краткое описание фланца Изображение

Тип 01 — Фланец стальной плоский приварной. 

Плоский фланец, привариваемый к трубе двумя угловыми швами. Применяется в трубопроводах с умеренными нагрузками, используется при PN до 25–40 в зависимости от исполнения. Широко применяется в нефтегазовой, химической и коммунальной отрасли.

Чертёж фланца плоского тип 01 ГОСТ 33259-2015
Фланец Тип 01

Тип 02 — Фланец плоский на приварном кольце.

Свободный фланец, устанавливаемый на приварное кольцо, которое приваривается к трубе. Обеспечивает удобство монтажа и демонтажа, применяется преимущественно в трубопроводах большого диаметра.

Чертёж фланца свободного на приварном кольце тип 02 ГОСТ 33259-2015
Фланец Тип 02

Тип 03 — Фланец плоский свободный на отбортовке.

Свободный фланец, работающий совместно с отбортованным концом трубы. Позволяет снизить требования к материалу фланца, применяется при невысоких давлениях и температурах рабочей среды.

Чертёж фланца свободного на отбортовке тип 03 ГОСТ 33259-2015
Фланец Тип 03

Тип 04 — Фланец плоский на хомуте под приварку.

Плоский фланец с хомутом для приварки к трубе. Используется для соединений трубопроводов, где требуется быстрая сборка и демонтаж.

Чертёж фланца плоского на хомуте под приварку тип 04 ГОСТ 33259-2015
Фланец Тип 04

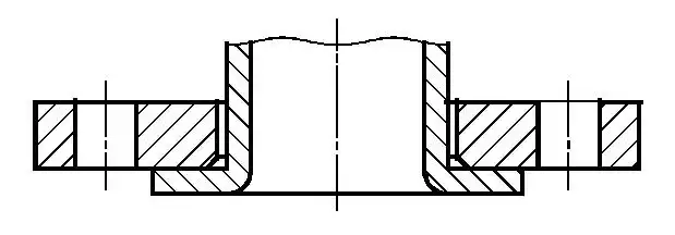
Тип 11 — фланец приварной встык.

Воротниковый фланец с коническим переходом, привариваемый к трубе стыковым сварным швом. Предназначен для эксплуатации при высоких давлениях и температурах, основной тип для нефтегазовой и энергетической отрасли.

Чертёж фланца воротникового тип 11 ГОСТ 33259-2015
Фланец Тип 11

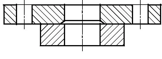
Тип 21 - Фланец корпуса арматуры.

Фланец, являющийся составной частью корпуса трубопроводной арматуры. Применяется в запорной, регулирующей и предохранительной арматуре. Конструктивные размеры и параметры определяются стандартом ГОСТ 33259-2015 и технической документацией на арматуру.

Чертёж фланца корпуса арматуры тип 21 ГОСТ 33259-2015
Фланец Тип 21

 

Размеры (DN) и номинальное давление (PN) фланцев по ГОСТ 33259-2015

 

ГОСТ 33259-2015 предусмотрены два основных параметра для подбора фланцев:

  • номинальное давление от 1PN до 250PN - бар или кгс/см2;
  • номинальный диаметр от 10DN до 4000DN.

Применяемость фланцев номинального диаметра DN в зависимости от номинального давления PN для каждого типа фланцев приведена в таблице 1 стандарта. Ниже представлен фильтр для этих параметров по каждому типу фланцев.

Материалы фланцев по ГОСТ 33259-2015

 

В таблице 11 стандарта указаны рекомендуемые материалы для изготовления фланцев. Таблицей предусмотрено применение конкретных марок сталей и чугуна. При подборе материала для изделия учитываются предполагаемые давление PN и температура применения, ºС.

Значение PN в кгс/cм2, указывается с пометкой "не более", что означает допустимость применения материала и для более низкого давления. 

В примечаниях к таблице указано:

  1. Для ряда 1 допускается изготовление фланцев из проката круглого и квадратного по НД на поставку в зависимости от применяемой марки стали.
  2. Термообработка — в соответствии с НД на заготовки (рекомендуются также [20], [21]).
  3. Для деталей арматуры, эксплуатируемой при температуре ниже минус 30 ºС до минус 40 ºС, сталь 25Л-II, 20Л-III, 25Л-III применяется в термообработанном состоянии (закалка + отпуск или нормализация + отпуск) с обязательным испытанием ударной вязкости KCU-40 ≥ 200 кДж/м2 (2,0 кгс∙м/см2).
  4. Полный перечень материалов, применяемых для фланцев и соединительных частей арматуры, приведен в ГОСТ 33260.
  5. Отливки из чугуна и стали — только для фланцев типа 21.
  6. Фланцы типов 01 и 02 — только для температуры применения не ниже минус 40 °С.

Представленный ниже фильтр показывает применяемость материалов при изготовлении фланцев по ГОСТ 33259-2015 в зависмости от условий использования - давления и температуры.

 

Производство фланцев ГОСТ 33259-2015

Производство фланцев ГОСТ 33259-2015 осуществляется с соблюдением требований стандарта к типоразмерам DN (условный проход), номинальному давлению PN (Ру), классу точности, допускам и исполнению уплотнительных поверхностей. Мы изготавливаем плоские, свободные, воротниковые фланцы и фланцы корпуса арматуры для трубопроводов различного назначения.

Технологический цикл охватывает полный комплекс операций — от подготовки заготовки до окончательного контроля и маркировки изделия.

Заготовка (поковка / прокат)

В зависимости от типа фланца, DN и PN применяются:

  • кольцевые поковки;

  • штампованные поковки;

  • горячекатаный круглый прокат.

Для воротниковых фланцев (тип 11) используются поковки, обеспечивающие высокую прочность металла и равномерную структуру.

Материалы: сталь 20, 09Г2С, 12Х18Н10Т и другие марки в соответствии с требованиями проекта, рабочей среды и температурного режима.

Правильно выбранная заготовка — основа надёжного фланцевого соединения под давление.

Токарная обработка ЧПУ

Механическая обработка выполняется на токарных станках с ЧПУ, что гарантирует:

  • точное соблюдение размеров по ГОСТ 33259-2015;

  • стабильную геометрию при серийном производстве;

  • соответствие делительного диаметра болтовых отверстий;

  • формирование уплотнительной поверхности (исполнение A, B, выступ, паз, шип, J — в зависимости от спецификации).

Формируются наружный и внутренний диаметр, привалочная плоскость, воротник (для типа 11), фаски и посадочные поверхности.

Сверление отверстий

Отверстия под болтовой комплект (болты или шпильки) выполняются с соблюдением:

  • количества и диаметра отверстий;

  • расположения по делительному диаметру;

  • требований соосности и перпендикулярности.

Это критично для правильной установки прокладки и равномерной затяжки фланцевого соединения.

Термообработка

При необходимости проводится:

  • нормализация;

  • закалка и отпуск;

  • снятие внутренних напряжений.

Термообработка позволяет обеспечить требуемые механические свойства — прочность, ударную вязкость, устойчивость к температурным нагрузкам и циклическому давлению.

Контроль геометрии и качества

Каждый фланец проходит контроль ОТК:

  • проверку линейных размеров и допусков;

  • контроль плоскостности и биения;

  • оценку качества уплотнительной поверхности;

  • проверку маркировки (DN, PN, марка стали, стандарт).

По требованию заказчика возможны:

  • УЗК (ультразвуковой контроль);

  • капиллярный контроль;

  • механические испытания образцов;

  • оформление паспорта изделия и сертификата качества.

 

Изготовление фланцев по чертежу заказчика

Изготавливаем фланцы по чертежу заказчика — для нестандартных трубопроводных систем, импортного оборудования и модернизации существующих узлов.

Это решение актуально, если требуется:

  • нестандартный DN или PN;

  • особое исполнение уплотнительной поверхности;

  • нестандартная толщина или диаметр;

  • индивидуальная спецификация материала;

  • точное соответствие существующей ответной детали.

Мы работаем по чертежам в форматах PDF, DWG, DXF и по техническому заданию.

Порядок работы

  1. Загрузка чертежа — направьте файл и спецификацию.

  2. Комментарий — укажите марку стали, требования к термообработке, НК, покрытию, классу точности.

  3. Расчёт сроков и стоимости — учитывается диаметр, давление, сложность обработки и объём партии.

  4. Производство и контроль — выпуск единичных изделий или серийной партии.

Изготовление фланцев по чертежу — сильный B2B-инструмент для машиностроительных предприятий, подрядчиков нефтегазовой отрасли и поставщиков технологического оборудования.

 

Где применяются фланцы ГОСТ 33259-2015

Фланцы ГОСТ 33259-2015 используются для создания разъёмных фланцевых соединений трубопроводов, аппаратов и оборудования, работающих под давлением.

Нефтегазовая отрасль

  • магистральные и технологические трубопроводы;

  • узлы подключения запорной арматуры;

  • насосные и компрессорные станции;

  • установки подготовки нефти и газа.

Применяются фланцы различных PN для работы при высоком давлении и температуре.

Химическая промышленность

  • трубопроводы агрессивных сред;

  • реакторные установки;

  • теплообменное оборудование;

  • системы подачи реагентов.

Используются углеродистые и нержавеющие стали с учётом химической стойкости и температуры эксплуатации.

Теплоэнергетика

  • паропроводы;

  • тепловые сети;

  • котельные установки;

  • ТЭЦ и промышленные энергоузлы.

Фланцы подбираются по условному проходу DN и номинальному давлению PN с учётом параметров среды.

Машиностроение

  • производство насосного и компрессорного оборудования;

  • корпусные элементы;

  • нестандартные агрегаты;

  • сборочные узлы.

Возможна поставка как стандартных изделий по ГОСТ 33259-2015, так и изготовленных по индивидуальному чертежу.

Страница обновляется и дополняется в соответствии с актуальной редакцией ГОСТ 33259-2015 и производственными возможностями предприятия.